Proyectos | Hoteles

Consultoría BIM para Puerto de Baja California, México

CLIENTE: China Constructions Company

SUPERFICIE: 180.000 m2

TIPOLOGÍAS: Infraestructura

UBICACIÓN: Baja California, México

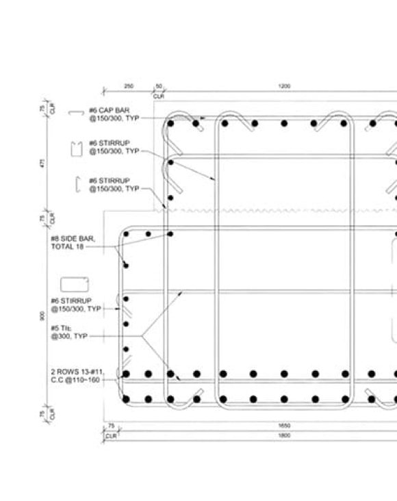
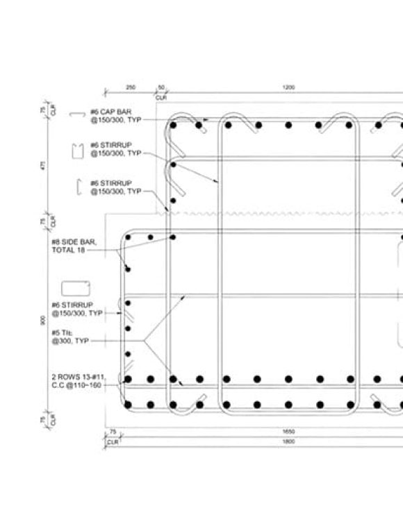
Proyecto portuario desarrollado con tecnologías BIM avanzadas y modelado estructural en LOD 400. El equipo de Impar se enfocó en elementos críticos y accesorios clave, mejorando la funcionalidad y seguridad del puerto. Se generaron planos detallados desde el modelo, se realizaron análisis de refuerzo y se gestionó toda la documentación bajo los estándares ISO 19650, incluyendo el Plan de Ejecución BIM (BEP), el Plan de Entrega de Información por Tareas (TIDP) y el Plan Maestro de Entrega de Información (MIDP), asegurando calidad y cumplimiento de hitos.